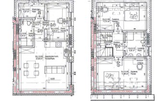
Details




4 rooms 1floor floor 80,29 m2 11 196,91 zł/m2
899 000 zł




Programme for estate agents Galactica Virgo