

















Opis nieruchomości
Kobyłka, duży segment środkowy z garażem, stan deweloperski, 4 pokoje + duży strych, ogródek, miejsce postojowe
OFERTA DEWELOPERSKA - bez podatku P.C.C i bez prowizji
Prezentujemy zamknięte, nowoczesne osiedle trzynastu budynków jednorodzinnych w zabudowie szeregowej.
Bliskość i łatwy dojazd do Warszawy oraz do terenów rekreacyjnych czynią inwestycję niezwykle atrakcyjną. Nowoczesna bryła budynków. Działki wydzielone geodezyjnie.
W inwestycji dostępne są budynki o powierzchni użytkowej 112,66 m2 do 113,04 m2, o powierzchni całkowitej z dużym i wysokim poddaszem ok.160 m2. W każdym budynku zaprojektowane wysokie i doświetlone poddasze wraz ze schodami betonowymi, instalacjami, tynkami. Zaprojektowano wjazd do osiedla poprzez bramę wjazdową sterowaną siłownikiem elektrycznym. Całe osiedle będzie ogrodzone, oświetlone i wzbogacone zielenią.
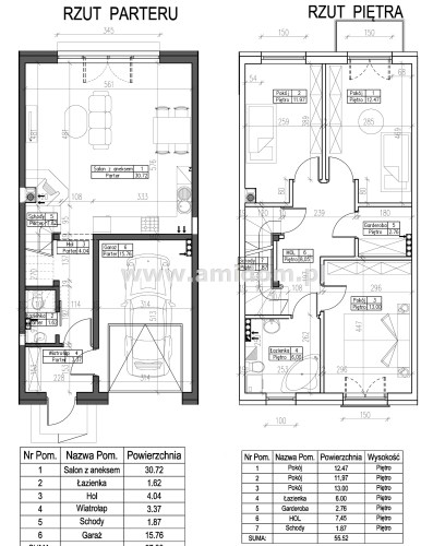
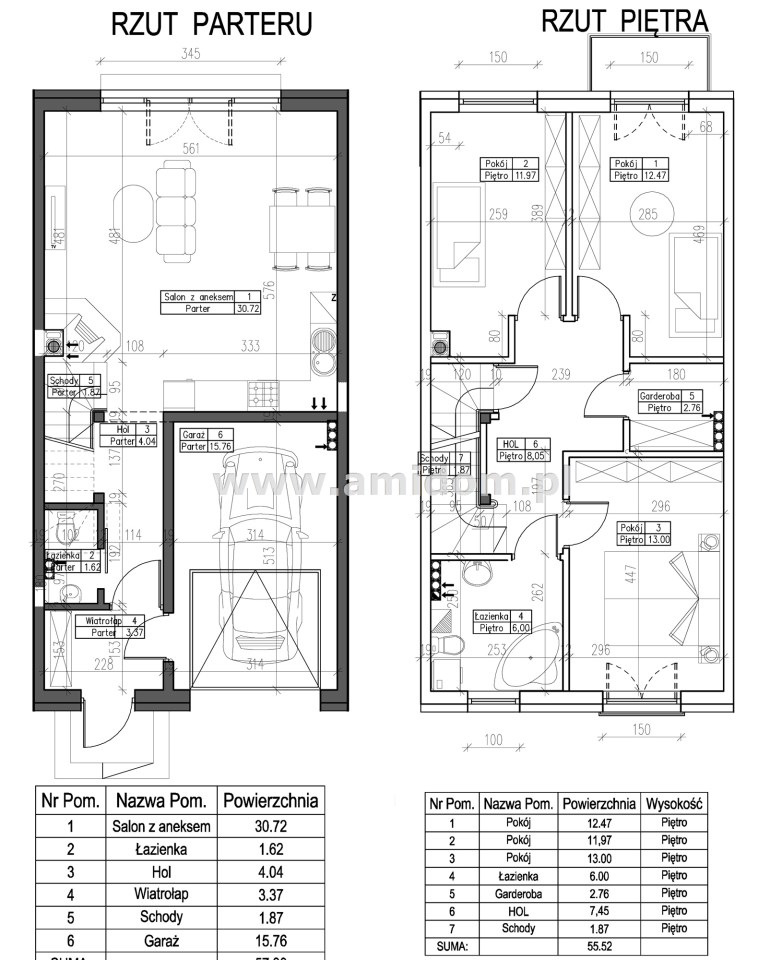
OPIS SZCZEGÓŁOWY: Segment środkowy z garażem (A8) o powierzchni całkowitej ze strychem ok.160 m2, powierzchni użytkowej 112,9 m2; ogródek ok.32 m2, dodatkowo miejsce postojowe przed garażem.
W poziomie parteru salon połączony z aneksem kuchennym, hol, wc, wiatrołap. Na piętrze trzy ustawne sypialnie, w tym jedna z balkonem, widna łazienka, przedpokój, garderoba. Na poddasze prowadzą wylane schody betonowe - duża przestrzeń z oknami i do własnej aranżacji.
ZESTAWIENIE POWIERZCHNI:
PARTER (57,38 m2):
- salon z aneksem kuchennym 30,72 m2;
- hol 4,04 m2;
- wc 1,62 m2;
- wiatrołap 3,37 m2;
- schody 1,87 m2;
- garaż 15,76 m2.
PIĘTRO (55,52 m2):
- pokój 13,00 m2;
- pokój 12,47 m2;
- pokój 11,97 m2;
- widna łazienka 6,00 m2;
- garderoba 2,76 m2;
- przedpokój 7,45 m2;
- schody 1,87 m2.
PODDASZE - po podłodze ok.50 m2 do własnej aranżacji.
STANDARD WYKOŃCZENIA: stan deweloperski
Wszystkie media miejskie: gaz, prąd, woda, kanalizacja.
Standard wykończenia : W budynkach zostaną wykonane instalacje cieplej i zimnej wody „centralnego ogrzewania, instalacja gazowa, kanalizacyjna, antenowa (bez anteny). Do budynków zostaną doprowadzone sieci : wody i kanalizacji, oraz wykonane przyłącza: gazowe, elektryczne, wodne, kanalizacyjne, światłowodowe, instalacja domofonowa (po 2 słuchawki na budynek). W budynkach zostaną zainstalowane piece gazowe do podgrzewania ciepłej wody i ogrzewania firmy Beretta bez zasobnika. Na parterze każdego z budynków wraz z łazienką na piętrze zostanie wykonana instalacja ogrzewania podłogowego (wodnego) w pozostałych pomieszczeniach piętra grzejniki płytowe stalowe bez głowic. Instalacja wodna, elektryczna i teletechniczna bez montażu osprzętu. Teren osiedla zostanie ogrodzony panelami metalowymi Systemu 3D a brama wjazdowa zostanie wyposażona w siłownik elektryczny sterowany pilotem , furtka otwierana poprzez elektrozamek. Teren Osiedla zostanie utwardzony kostką betonową częściowo kratami PCV w zasypce kamiennej, działki od strony ogródków zostaną przedzielone płotkami w systemie panele metalowe 3D.
Ławy fundamentowe — żelbetowe z betonu kl B 20, zbrojone podłużną stalą A-lll (34GS) pręty podłużne od 4 do 6 fi 12mm,strzemiona fi 6/8mm co 25cm, stal Al(ST3S), Wysokość ław 40 cm, posadowienie ław na głębokości ok 1, lm poniżej terenu na gruncie rodzimym nośnym. Fundamenty budynków wymurowane z bloczków betonowych klasy BI 5 na zaprawie cementowej. Budynki wymurowane z pustaka ceramicznego gr. 25cm (ściany zewnętrzne warstwowe o łącznej gr. 40 cm)- ściany zewnętrzne, ściany wewnętrzne konstrukcyjne — gr. 19cm na zaprawie cementowo-wapiennej z pustaków szczelinowych ceramicznych. Scianki wewnętrzne działowe z pustaków z betonu komórkowego typu H+H lub z pustaków ceramicznych gr 10 lub 11 ,5 lub 12 cm na zaprawie cementowo-wapiennej. Strop nad parterem i piętrem- płyta żelbetowa gr 19cm z betonu B-20 i stali Alll( 34GS) lub stali A-lllN(RB500W). Schody wewnętrzne — żelbetowe płytowe o gr płyty nośnej 15 cm Beton kl B20 MPA. Konstrukcja więźby dachowej- drewniana o ustroju płatowo-jętkowym, dach dwuspadowy, drewno konstrukcyjne kl C24 sosnowe. Krokwie 8x16cm, murłaty 14x14cm, płatew 14x20cm,jętki 2x8x20ch, słupki 14x14cm. Dach kryty blachodachówką lub blachą płaską na ruszcie drewnianym. Tynki wewnętrzne — gipsowe (maszynowe), wylewki cementowe, dach docieplony pianą PUR lub wełną mineralną, ściany zewnętrzne ocieplone styropianem grubości 15 cm, balustrady stalowe(ocynkowane) malowane w kolorze grafitowym, okna PCV zgodnie z obowiązującą normą, drzwi wejściowe drewniane z obłożeniem blachą stalową w kolorze grafitowym/szarym na dwa zamki. Parapety zewnętrzne z blachy w kolorze ciemnoszarym, parapety wewnętrzne z konglomeratu w kolorze beżowym. Przewidywany kolor elewacji jasnoszary lub biały, kolor okien od zewnątrz grafitowy a od wewnątrz biały. Teren Osiedla doświetlony od drogi dojazdowej poprzez oprawy stojące (niskie).
Lokalizacja: sklep spożywczy 600 m, szkoła podstawowa 650 m, przedszkole 900 m; plac zabaw - 900m, Przychodnia 1000m, stacja PKP Kobyłka lub Kobyła Ossów-2,1 km, wjazd na S8 ok. 3,5 km.
Planowany termin zakończenia budowy – 30.12.2025 roku
POLECAM I ZAPRASZAM - możliwość oglądania również w weekendy, po wcześniejszym umówieniu terminu.
ZAPEWNIAMY POMOC W UZYSKANIU KREDYTU BANKOWEGO - zapraszamy do kontaktu z naszym doradca kredytowym
Nota prawna
Opis oferty zawarty na stronie internetowej sporządzany jest na podstawie oględzin nieruchomości oraz informacji uzyskanych od właściciela, może podlegać aktualizacji i nie stanowi oferty określonej w art. 66 i następnych K.C.Szczegóły




