Opis nieruchomości
Kobyłka, nowe bliźniaki z garażem, 4 pokoje+ duże poddasze, oddzielne wjazdy, duży ogród
Oferta deweloperska - bez podatku P.C.C. oraz bez prowizji
Prezentujemy nowa kameralną inwestycję składającą się z dwóch domów w zabudowie bliźniaczej w spokojnej i cichej okolicy Kobyłki. W sąsiedztwie tylko niska zabudowa jednorodzinna.
Atutami inwestycji są:
- doskonała lokalizacja - tylko 1,4 km do stacji PKP Kobyłka Ossów
- oddzielne wjazdy do każdego lokalu z drogi publicznej
- duże ogródki
- instalacje do klimatyzacji w każdym pokoju
- ogrzewanie podłogowe na parterze i piętrze
- duże poddasze docieplone pianą do własnej aranżacji
Dostępne domy:
A1- działka ok. 279 m2 - cena 1080000 zł
A2 - działka ok. 220 m2 cena 1060000 zł
B1 - działka ok. 220 m2 cena 1060000 zł
OPIS SZCZEGÓŁOWY: Połowa bliźniaka - lokal A2 - o powierzchni całkowitej ok. 150 m2, powierzchni użytkowej bez strychu 112,74 m2.
Lokal składa się z dobrze doświetlonego, dużego salonu połączonego z aneksem kuchennym - razem 32,09 m2, holu, wc, wiatrołapu z przejściem do garażu.W wiatrołapie miejsce na szafę wnękową. Na piętrze trzy ustawne sypialnie, łazienka z oknem, garderoba/kotłownia z miejscem na piec gazowy i pralkę, przedpokój. W salonie oraz każdej sypialni na piętrze wyprowadzona instalacja do Klimatyzacji.
Dodatkową powierzchnię stanowi duży strych nieużytkowy, na którym można zrobić dodatkowe sypialnie, łazienkę. Na poddasze wylane betonowe schody. Poddasze po podłodze około 50 m2. Wstawione dwa okna, dach docieplony pianą pur (15 cm), wyprowadzone media.
WSZYSTKIE media miejskie: gaz, prąd, woda, kanalizacja oraz światłowód.
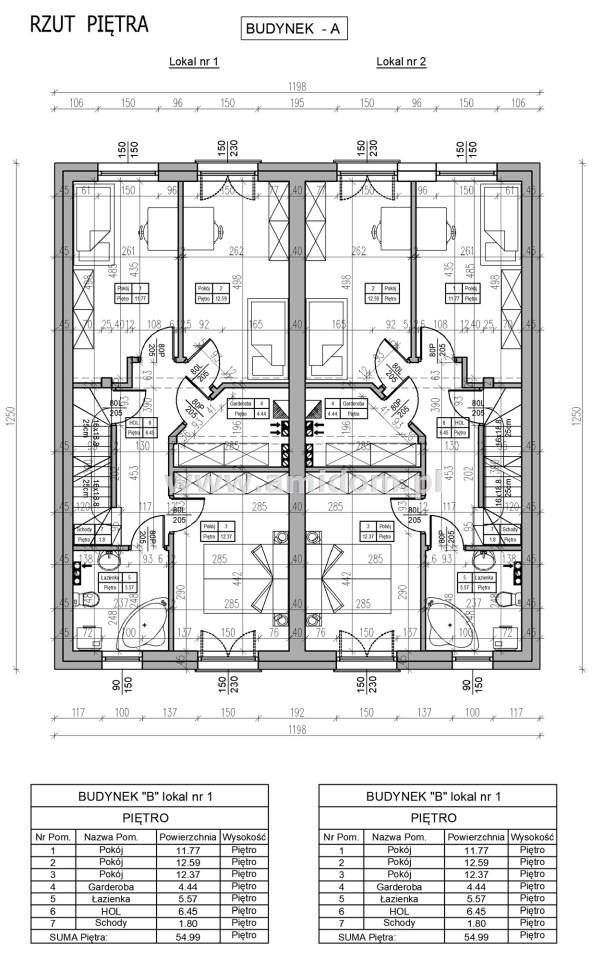
Powierzchnie poszczególnych pomieszczeń:
PARTER 57,75 m2
- wiatrołap 2,94 m2
- hol 3,67 m2
- wc 1,40 m2
- salon z aneksem kuchenny 32,09 m2
- schody 1,80 m2
- garaż 15,85 m2
PIĘTRO 54,99 m2:
- pokój 11,57 m2
- pokój 12,59 m2
- pokój 12,37 m2
- łazienka 5,57 m2
- garderoba 4,44 m2
- hol 6,45 m2
- schody 1,80 m2.
PODDASZE - po podłodze ok. 50 m2, w tym powierzchnia użytkowa ok. 38,00 m2. Do własnej aranżacji - możliwość wydzielenie np. dwóch dodatkowych sypialni i łazienki.
LOKALIZACJA: stacja PKP ok. 1,4 km; przedszkole i szkoła podstawowa ok. 1,8 km; sklep spożywczy 800 m.
STANDARD WYKOŃCZENIA:
Budynek wykonany metodą tradycyjną z cegły ceramicznej porotherm, dwa stropy betonowe, zbrojone, lane// Ocieplenie zewnętrzne: styropian, tynk silikonowo-silikatowy// Dach pokryty blachodachówką// Tynki wewnętrzne gipsowe kl 3// Drzwi wejściowe stalowe, ocieplone // Stolarka okienna PCV, trzyszybowe, pięciokomorowe, uchylne // Instalacja ogrzewania podłogowego parter i piętro oprócz garażu, grzejnik w garażu// Ogrodzenie frontowe: stalowe, okablowanie do domofonu// podjazd do garażu, chodniki wyłożone kostką brukową// Instalacja elektryczna bez osprzętu, podtynkowa, rozdzielnia, przewód trójfazowy zasilający kuchnię // Instalacja elektryczna do fotowoltaiki wyprowadzona na dach//Instalacje do klimatyzacji w salonie i pokojach na piętrze//poddasze: wyprowadzone okablowanie do gniazd i oświetlenia, kanalizacja, CO, woda// Instalacja alarmowa, domofonowa, telewizyjna + Internet // Rynny i rury spustowe pcv// Media: gaz sieć, woda sieć, kanalizacja miejska// Parapety zewnętrzne stalowe malowane, wewnętrzne konglomerat // Podbitka pod okapnik PCV z wentylacją// Strych przestrzenie pomiędzy krokwiami ocieplone pianą pur 18cm, podłoga styropian 5cm + wylewka betonowa, wyprowadzone zakończenia cwu i co // Instalacja gazowa do pieca gazowego// Piec gazowy dwufunkcyjny kondensacyjny z zasobnikiem
Planowane zakończenie budowy - koniec roku 2025.
POLECAM I ZAPRASZAM na prezentację - możliwość oglądania codziennie i w weekendy po wcześniejszym umówieniu terminu.
ZAPEWNIAMY KOMPLEKSOWĄ OBSŁUGĘ TRANSAKCJI - zapraszamy do kontaktu z naszym doradcą finansowym
Nota prawna
Opis oferty zawarty na stronie internetowej sporządzany jest na podstawie oględzin nieruchomości oraz informacji uzyskanych od właściciela, może podlegać aktualizacji i nie stanowi oferty określonej w art. 66 i następnych K.C.Szczegóły



