Opis nieruchomości
Kobyłka, segment skrajny na sprzedaż, 4 pokoje + poddasze do aranżacji, dwa miejsce postojowe, wygrodzony ogródekBiuro sprzedaży dewelopera
OFERTA DEWELOPERSKA - KUPUJĄCY NIE PŁACI 2% PODATKU P.C.C! 0% prowizji dla Kupującego
Prezentujemy nową inwestycję czterech domów w zabudowie szeregowej.
Nowoczesna bryła budynków oraz funkcjonalne układy pomieszczeń zapewnią komfort mieszkańcom.
Atutem nieruchomości jest doskonała lokalizacja - wszystko w bliskim zasięgu: szkoła podstawowa 700m, przedszkole 600m, obok osiedla sklep spożywczy, Lidl i centrum handlowe, cukiernia 300m, przychodnia 800m, klub sportowy Wicher 300m, do stacji PKP - tylko 900 m. Bardzo dobry dojazd samochodem do Warszawy - do trasy S8 3,5 km.
W ofercie:
-dwa segmenty środkowe w cenie 989.000- 999.000 zł
-jeden segment skrajny za 1.090.000 zł
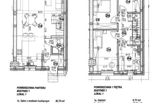
OPIS SZCZEGÓŁOWY: Segment skrajny o powierzchni całkowitej z poddaszem ok. 120 m2, powierzchni użytkowej 89,28m2, cała działka z budynkiem ok. 200 m, cześć zielona ok.53 m2, wykostkowane dwa miejsca postojowe z boku budynku, z oddzielnym wjazdem.
W poziomie parteru dobrze doświetlony duży salon połączony z widnym aneksem kuchennym (ok.37 m2), wc, wiatrołap. W wiatrołapie miejsce na szafę wnękową. Na piętrze trzy sypialnie, widna łazienka, przedpokój. Na poddasze wylane schody betonowe. Na poddaszu dodatkowa powierzchnia do własnej aranżacji - po podłodze ok. 40 m2.
ZESTAWIENIE POWIERZCHNI:
PARTER (43,80m2):
- salon aneksem kuchennym 36,79 m2;
- wc 2,01m2;
- wiatrołap 3,06 m2;
- schody 2,50 m2;
PIĘTRO (45,48 m2):
- pokój 12,64 m2;
- pokój 12,46 m2;
- pokój 6,72 m2;
- łazienka 6,64 m2;
- komunikacja 5,08 m2;
- schody 1,94 m2.
PODDASZE - po podłodze ok.40 m2 do własnej aranżacji.
STANDARD WYKOŃCZENIA:
Wszystkie media miejskie: gaz, prąd, woda, kanalizacja.
Budynki wykonane w technologii tradycyjnej: cegła ceramiczna / ocieplenie – styropian szary o grubości 20 cm/ elewacja zewnętrzna – tynk silikatowy / dach pokryty blachodachówką / balustrady balkonowe ze stali nierdzewnej /stolarka okienna PCV -okna 3-szybowe, ciepły montaż/ stolarka drzwiowa grafitowa / tynki wewnętrzne gipsowe, bez gładzi /wylewka betonowa przygotowana pod ułożenie podłogi / parapety wewnętrzne z konglomeratu i zewnętrzne -metalowe / siła w kuchni / ogrzewanie podłogowe cały parter i piętro / Media: gaz, prąd, woda miejska, kanalizacja / budynki ogrodzone / każdy segment z oddzielnym wjazdem z drogi publicznej/ miejsca postojowe wyłożone kostką / na poddasze doprowadzone media/Domy sprzedawane bez pieca gazowego. Wewnętrzne instalacje: instalacja elektryczna / instalacja wodno-kanalizacyjna / instalacja
Lokale oddane do użytkowania.
POLECAM I ZAPRASZAM - możliwość oglądania również w weekendy, po wcześniejszym umówieniu terminu.
ZAPEWNIAMY POMOC W UZYSKANIU KREDYTU BANKOWEGO - zapraszamy do kontaktu z naszym doradca kredytowym
Nota prawna
Opis oferty zawarty na stronie internetowej sporządzany jest na podstawie oględzin nieruchomości oraz informacji uzyskanych od właściciela, może podlegać aktualizacji i nie stanowi oferty określonej w art. 66 i następnych K.C.Szczegóły



