Opis nieruchomości
TYLKO U NAS - nowa kameralna inwestycja blisko stacji PKP!!! Rolety zewnętrze i ogrzewanie podłogowe w standardzie!Ząbki, ul. Piłsudskiego, mieszkanie dwupoziomowe, 4 pokoje, 80,29 m2, 2 miejsca postojowe, nieduży ogródek
Oferta deweloperska - bez prowizji i bez podatku P.C.C.
Prezentujemy nowe, kameralne, zamknięte osiedle - tylko 4 mieszkania w inwestycji. Każdy lokal z oddzielnym wejściem.
Bardzo dobra lokalizacja - w pobliżu pełna infrastruktura: sklepy, punkty usługowe. Do stacji PKP tylko 400 m, szkoła podstawowa 200 m, przedszkole 300m.
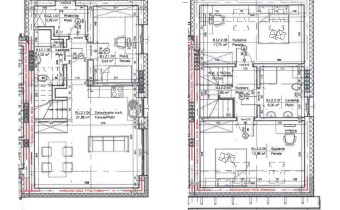
OPIS SZCZEGÓŁOWY:
Mieszkanie położone na piętrze i poddaszu użytkowym - Lokal B2 o powierzchni 80,29 m2.
Lokal składa się z dużego salonu z aneksem kuchennym, 3 pokoi, dwóch łazienek (w tym jedna z oknem), dwóch korytarzy i wiatrołapu.
Zestawienie powierzchni:
I piętro 44,90 m2:
- wiatrołap 3,76 m2
- pokój 9,24 m2
- salon z aneksem kuchennym 27,88 m2
- łazienka 4,02 m2
Poddasze użytkowe:
- korytarz 3,80 m2
- sypialnia 13,88 m2
- sypialnia 11,70 m2
- łazienka z oknem 6,00 m2
Standard: wszystkie media miejskie: gaz, prąd, woda, kanalizacja
Ławy fundamentowe – żelbetowe, zbrojone stalowymi prętami, zalane betonem B-25 / Ściany fundamentowe – murowane z bloczków betonowych szerokości 25 cm / Podłogi na gruncie – styropian 15 cm / Posadzki betonowe (B15 beton) / Ściany zewnętrzne murowane na klej cienkowarstwowy z cegły Porotherm 25 cm, od zewnątrz styropian grafitowy grubości 20 cm / Ściany wewnętrzne konstrukcyjne nośne z cegły Porotherm 25 cm / Ściany działowe z Porotherm 11 cm / Stropy na piętrze betonowe B25 / Schody żelbetowe, monolit do wykończenie we własnym zakresie / Konstrukcja dachu z elementów drewnianych / Poddasze ocieplony wełną mineralną grubości 35 cm (15 cm i 10 cm- krzyżowo, współczynnik 0,33), okna dachowe trzyszybowe / Pokrycie dachowe : blachodachówkowa / Pełne orynnowanie dachu, stalowe / Parapety wewnętrzne konglomerat -2,5 cm grubości / Parapety zewnętrzne z blachy stalowej powlekanej / Rolety zewnętrzne elektryczne: parter, piętro, bez poddasza / Wiata śmietnikowa / Tynki wewnętrzne – gipsowe / Tynki zewnętrzne – silikatowo -silikonowe na ociepleniu ze styropianu grubości 20 cm / Stolarka okienna – z PCV z nawiewnikami, pakiet trzyszybowy /Stolarka drzewna – drzwi wejściowe stalowe, przeszklone / Balustrady zewnętrzne ze stali nierdzewnej tzw. kwasówka z przeszkleniem / przegrodzenia odgradzające ogródki – panele ogrodzeniowe metalowe / Kostka betonowa w ciągu pieszym do drzwi oraz wykostkowana droga dojazdowa, miejsca parkingowe eko-krata / Automat do bramy wjazdowej na osiedle w standardzie na pilota
INSTALACJE : Ogrzewanie i ciepła woda – z pieca gazowego, kocioł gazowy dwufunkcyjny, kondensacyjny, z zamkniętą komorą spalania, z wyprowadzeniem spalin przewodem powietrzno-spalinowym przez dach budynku / Ogrzewanie podłogowe w wszystkich lokalach: parter, piętro i poddasze / Woda z projektowanych przyłączy z sieci miejskiej / Ścieki z projektowanych przyłączy z sieci miejskiej / Instalacja elektryczna: przewody miedziane, instalacja wykonana puszkami łączeniowymi, bez osprzętu; pomiar energii elektrycznej zlokalizowany w oddzielnym liczniku; okablowanie do ewentualnej instalacji alarmowej / Instalacja gazowa, z indywidualnym licznikiem do każdego lokalu / Przyłącze elektryczne do budynku ziemne z indywidualnym licznikiem do każdego lokalu / instalacje: TV, alarmowa, internetowa, domofon, do klimatyzacji w salonie/ Wyprowadzenie okablowania do kamer zewnętrznych / Odrodzenie z bloczków betonowych ogrodzeniowych z wypełnieniem przęsłami metalowymi (ażurowo- żaluzjowym), brama i furtka
Mieszkania oddane do użytkowania
ZAPEWNIAMY PEŁNĄ OBSŁUGĘ PRAWNĄ TRANSAKCJI ORAZ OFERUJEMY PEŁNE WSPARCIE I PRZEPROWADZENIE WSZELKICH FORMALNOŚCI PRZY UZYSKANIU KREDYTU HIPOTECZNEGO.
POLECAM I ZAPRASZAM - możliwość oglądania również w weekendy, po wcześniejszym umówieniu terminu
Nota prawna
Opis oferty zawarty na stronie internetowej sporządzany jest na podstawie oględzin nieruchomości oraz informacji uzyskanych od właściciela, może podlegać aktualizacji i nie stanowi oferty określonej w art. 66 i następnych K.C.Szczegóły



