Opis nieruchomości
TYLKO U NAS!!! OSTATNIE WOLNE MIESZKANIE W INWESTYCJIKobyłka, bezczynszowe mieszkanie na PARTERZE z ogródkiem, 3 pokoje, ogródek ok. 49 m2, dwa miejsca postojowe
OFERTA DEWELOPERSKA - bez podatku P.C.C , bez prowizji
Prezentujemy komfortowe, mieszkanie bezczynszowe położone na parterze w niskim budynku w bardzo dobrej lokalizacji - tylko 600 m do stacji PKP. W pobliżu pełna infrastruktura.
Kameralna inwestycja - dwa budynki czterolokalowe, w sumie osiem mieszkań bezczynszowych.
OPIS SZCZEGÓŁOWY:
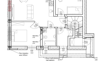
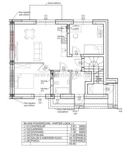
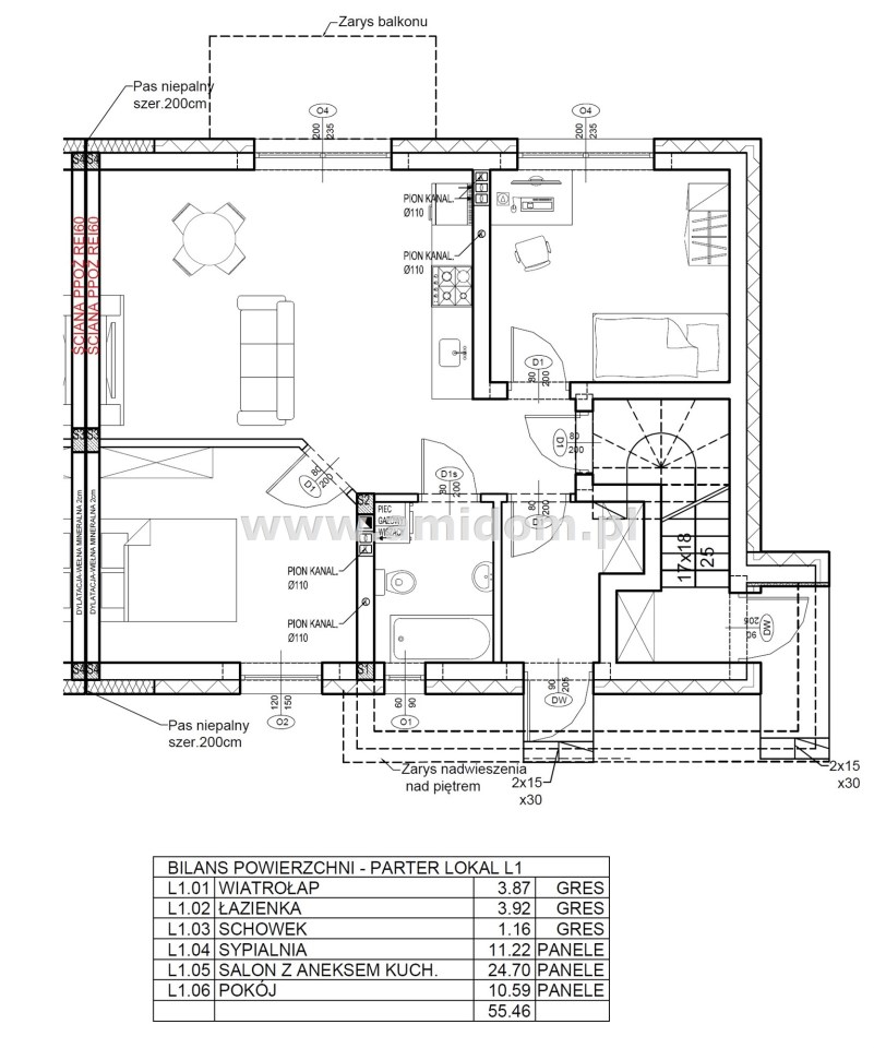
Lokal na parterze o powierzchni całkowitej 55,46 m2. Ogródek i dwa miejsca postojowe na terenie osiedla w cenie.
Lokal składa się z salonu połączonego z aneksem kuchennym, dwóch sypialni, łazienki, schowka i wiatrołapu. Z salonu wyjście do ogródka.
Zestawienie powierzchni:
- salon z aneksem kuchennym 24,70 m2
- pokój 11,22 m2
- pokój 10,59 m2
- łazienka 3,92 m2
- schowek 1,16 m2
- wiatrołap 3,87 m2
LOKALIZACJA: sklep spożywczy 600m, przychodnia 900m; przedszkole 600m, szkoła podstawowa 1,2 km; stacja PKP Kobyłka 600 m, wjazd na obwodnice S8 4 km.
STANDARD: Wszystkie media miejskie: gaz, prąd, woda, kanalizacja.
Lokal sprzedawany w stanie deweloperskim. W cenie piec gazowy, dwufunkcyjny, kondensacyjny, z zamkniętą komorą spalania. Ogrzewanie podłogowe: w całym lokalu. Tynki wew. - gipsowe; okna PCV trzyszybowe; Drzwi metalowe - docieplone. Teren ogrodzony, uporządkowany. Dwa miejsca zewnętrzne przed budynkiem.
Budynki oddane do użytkowania.
Zapraszamy na spotkanie - codziennie i w weekendy (po wcześniejszym umówieniu terminu)
Zapewniamy pełną obsługę prawną transakcji oraz oferujemy pełne wsparcie i przeprowadzenie wszelkich formalności przy uzyskaniu kredytu hipotecznego.
więcej ofert na www.amidom.pl
Nota prawna
Opis oferty zawarty na stronie internetowej sporządzany jest na podstawie oględzin nieruchomości oraz informacji uzyskanych od właściciela, może podlegać aktualizacji i nie stanowi oferty określonej w art. 66 i następnych K.C.Szczegóły



