Opis nieruchomości
Nadma, mieszkanie na parterze, stan deweloperski, 3 pokoje, ogródek około 55 m2, dwa miejsca postojowe.Biuro sprzedaży dewelopera - bez podatku P.C.C i bez prowizji
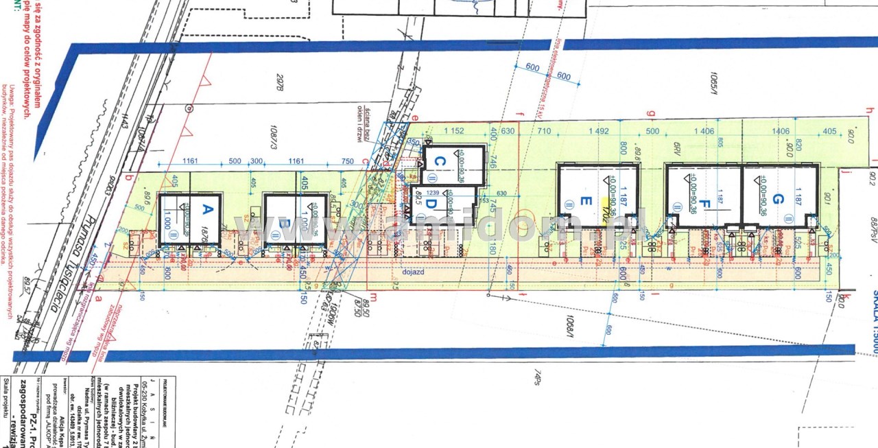
OPIS INWESTYCJI: Prezentujemy nowe osiedle bliźniaków, segmentów i mieszkań w podwarszawskiej Nadmie. Osiedle zamknięte. W inwestycji bliźniaki bez garażu, bliźniaki i segmenty z garażami oraz 4 mieszkania. W cenie do każdej nieruchomości ogródek. Zróżnicowana oferta pozwoli każdemu znaleźć idealna dla siebie nieruchomość.
W ofercie:
- bliźniaki bez garażu - lokale A1A2 i B1B2 (98,56 m2) - cena: od 760.000 do 790.000 zł
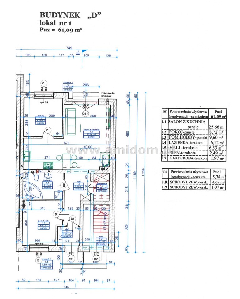
- dwa mieszkania na parterze C1 (58,03 m2) rezerwacja i D1 (61,09 m2) cena 580.000 zł
- dwa mieszkania na piętrze + poddasze C2 (113,17 m2) i D2 (117,83 m2)zarezerwowane
- bliźniak z garażem - lokale E1 E2 i segmenty skrajne z garażem F1 i G2 (155,62 m2) cena: od 890.000 zł do 940.000 zł
- segmenty środowe z garażem F2 i G1 (155,73 m2) cena 850.000 zł
OPIS SZCZEGÓŁOWY:
Mieszkanie na parterze D1 o powierzchni użytkowej 61,09 m2, ogródek, dwa miejsca postojowe.
Lokal składa się z salonu połączonego z aneksem kuchennym, dwóch sypialni, łazienki, garderoby/schowka, przedpokoju i wiatrołapu. W wiatrołapie miejsce na szafę wnękową. W salonie możliwość zainstalowania kominka.
ZESTAWIENIE POMIESZCZEŃ:
- salon z kuchnią 25,66 m2;
- pokój 8,72 m2;
- pokój 9,60 m2;
- łazienka 6,12 m2;
- schowek/garderoba 1,97 m2
- przedpokój 6,53 m2;
- sień 2,49 m2.
Lokalizacja: Idealny dojazd do Warszawy - do wjazdu na S8 tylko 1 km, szkoła podstawowa 300 m, przystanki komunikacji wew. 200 m, sklepy spożywcze 200 m i 300 m.
Standard wykończenia: lokale sprzedawane w stanie deweloperskim: w cenie dwufunkcyjny piec gazowy. Ogrzewanie podłogowe w całym lokalu - również na poddaszu nieużytkowym. Tynki wewnętrzne: gipsowe. Instalacje: elektryczna, alarmowa, internet, wodno- kanalizacyjna. Posadzki - wylewka betonowa. Drzwi zewnętrzne -metalowe z przeszkleniem, ocieplane. Docieplenie budynku - styropian 20 cm. Materiał: cegła porotherm. Dach - blachodachówka. Dach od wewnątrz docieplony pianą pur. Chodniki i miejsca postojowe wyłożone kostką. Teren ogrodzony. Automatyczna brama wjazdowa na osiedle.
Media: prąd, gaz, woda, szambo.
Planowane zakończenie budowy IV kwartał 2025 roku - I kwartał 2026r.
POLECAM - możliwość umówienia spotkań również na weekendy, po wcześniejszym ustaleniu terminu.
Zapewniamy pełną obsługę prawną transakcji. Oferujemy pełne wsparcie i przeprowadzenie wszelkich formalności przy uzyskaniu kredytu hipotecznego.
więcej ofert na naszej stronie amidom
Nota prawna
Opis oferty zawarty na stronie internetowej sporządzany jest na podstawie oględzin nieruchomości oraz informacji uzyskanych od właściciela, może podlegać aktualizacji i nie stanowi oferty określonej w art. 66 i następnych K.C.Szczegóły



