Opis nieruchomości
Dobczyn, dom parterowy, wolnostojący z garażem, o powierzchni 128,45 m2, duża działka 945 m2Oferta deweloperska - bez prowizji oraz bez 2% podatku P.C.C.
DO OFERTY DOŁĄCZONE ZOSTAŁY ZDJĘCIA POGLĄDOWE - AKTUALNIE W TRAKCIE BUDOWY JEST TAKI SAM DOM - termin zakończenia budowy planowany jest na koniec kwietnia 2026 r.
Prezentujemy komfortowy, parterowy dom wolnostojący o funkcjonalnym układzie pomieszczeń położony w Dobczynie, w gminie Klembów, w powiecie wołomińskim.
W okolicy tylko nowa, jednorodzinna zabudowa. Bardzo dobra lokalizacja - dojazd do Warszawy kolejką podmiejską, do II linii Metra.
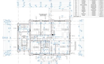
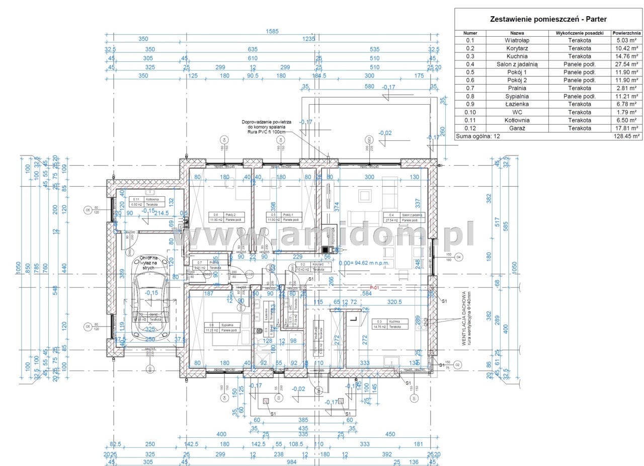
Dom o powierzchni całkowitej 128,45 m2 podzielony na cześć dzienną i nocną. W części dziennej znajduje się dobrze doświetlony przez duże okna salon z jadalnią, połączony z widnym aneksem kuchennym (razem 42,30 m2), wiatrołap z miejscem na szafy, wc. W części sypialnianej domu znajdują się trzy ustawne sypialnie, widna łazienka, przedpokój oraz pralnia z której jest przejście do garażu i pomieszczenia technicznego (kotłowni). Z salonu wyjście na wyłożony kostką taras.
Zestawienie powierzchni:
- wiatrołap 5,03 m2
- korytarz 10,42 m2
- kuchnia 14,76 m2
- pokój dzienny z jadalnią 27,54 m2
- sypialnia 11,90 m2
- sypialnia 11,90 m2
- sypialnia 11,6,789,07 m2
- wc 1,79 m2
- pralnia 2,81 m2
- garaż 17,81 m2
- pom.tech/kotłownia 6,50 m2.
Lokalizacja: Bezpośredni dojazd do Warszawy Wileńskiej zapewnia kolej podmiejska - do stacji PKP Dobczyn ok.2,6 km. W pobliżu szkoła podstawowa, przedszkole ok. 1000 m. Sklepy spożywcze - 1,6 km oraz 1,8 km. Niedaleko trasa S8 (ok.7,8 km), która zapewnia dobry i szybki dojazd samochodem do Warszawy, Centrum Handlowego M1 (ok.20 minut), CH Targówek.
Dom sprzedawany w stanie DEWELOPERSKIM: wybudowany z cegły ceramicznej porotherm; dach blachodachówka z podbitką i orynnowaniem; okna PCV (pakiet trzyszybowy, 7 komorowe- aluplast), ciepły montaż; elewacja z dociepleniem zewnętrznym styropianem grafitowym 15 cm (0,33); drzwi wejściowe: metalowe ocieplone; brama garażowa segmentowa; podjazd, chodnik, taras oraz opaska wokół domu wyłożone kostką brukową; W środku tynki gipsowe (bez gładzi);posadzki betonowe; instalacje: elektryczne, wodno- kanalizacyjne, alarmowe, tv, ogrzewanie podłogowe. Doprowadzone media: prąd, woda miejska, wkopane szambo na 10m3. We własnym zakresie Kupującego: źródło ciepła (np. piec gazowy ze zbiornikiem LPG albo pompa ciepła), docieplenie strychu/dachu. Teren ogrodzony, uporządkowany.
Więcej informacji pod numerem telefonu 690960767
ZAPEWNIAMY KOMPLEKSOWĄ OBSŁUGĘ TRANSAKCJI, W TYM RÓWNIEŻ KREDYTOWĄ.
POLECAM I ZAPRASZAM - możliwość oglądania również w weekendy, po wcześniejszym umówieniu terminu
Więcej ofert na naszej stronie www.amidom.pl