 
                                     
                                     
                                     
                                     
                                     
                                     
                                     
                                     
                                     
                                     
                                     
                                     
                                     
                                     
                                     
                                     
                                     
                                     
                                    Opis nieruchomości
Pasek, gm. Klembów, powiat wołomiński, dom w zabudowie bliźniaczej, 5 pokoi + garaż+ kotłownia, stan surowy zamknięty z elewacją działka 450 m2Prezentujemy dom jednorodzinny w budowie bliźniaczej położony w miejscowości Pasek, powiat wołomiński. Działki wydzielone geodezyjnie - oddzielne wjazdy z drogi.
Dom o funkcjonalnym układzie pomieszczeń z dobrze doświetloną działką.
W poziomie parteru salon połączony z jadalnią i widnym aneksem kuchennym (razem 31,43 m2), nieduża łazienka, wiatrołap z miejscem na szafę, kotłownia i garaż. Na piętrze cztery sypialnie, widna łazienka i przedpokój. Dodatkową powierzchnię do przechowywania stanowi strych nieużytkowy nad piętrem.
Powierzchnia całkowita domu 129,90 m2, działka 450 m2.
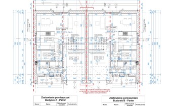
Zestawienie powierzchni:
Parter - 64,17 m2:
- wiatrołap 3,61 m2
- kuchnia 7,51 m2
- salon i jadalnia 23,92 m2
- łazienka 3,92 m2
- kotłownia 3,57m2
- garaż 17,33 m2.
PIĘTRO - 65,73 m2:
- korytarz 6,36 m2
- pokój 15,01 m2
- pokój 13,04 m2
- pokój 12,78 m2
- pokój 11,54 m2
- łazienka 6,89 m2
Lokalizacja: Bezpośredni dojazd PKP do Warszawy Wileńska kolejką podmiejską - do stacji PKP w Dobczynie tylko ok.1,5 km. Sklep spożywczy 300m. Szkoła podstawowa, przedszkole ok. 800 m. Niedaleko trasa S8 (ok.10 km), która zapewnia dobry i szybki dojazd samochodem do Warszawy, Centrum Handlowego M1 (ok.20minut), CH Targówek.
Dom sprzedawany w stanie surowym w środku, z dociepleniem styropianem i elewacją:
wybudowany z cegły ceramicznej porotherm; dach blachodachówka z podbitką i orynnowaniem; okna PCV (pakiet trzyszybowy), elewacja z dociepleniem zewnętrznym styropianem 20 cm); drzwi wejściowe: metalowe ocieplone; brama garażowa segmentowa; podjazd, chodnik, taras oraz opaska wokół domu wyłożone kostką brukową. W środku stan deweloperski obejmuje: tynki gipsowe; wylewki betonowe; instalacje: elektryczna (bez osprzętu), alarmowa, internetowa, wodno-kanalizacyjna, Tv w salonie; ogrzewanie podłogowe - parter (be garażu), całe piętro; sufity na piętrze i docieplenie dachu we własnym zakresie kupującego.
Media: światłowód w ulicy, prąd, woda miejska, wkopane szambo na 10m3. Teren ogrodzony, uporządkowany.
Planowany termin zakończenia prac budowlanych - I kwartał 2026 roku.
Więcej informacji pod numerem telefonu 690960767
ZAPEWNIAMY KOMPLEKSOWĄ OBSŁUGĘ TRANSAKCJI, W TYM RÓWNIEŻ KREDYTOWĄ.
POLECAM I ZAPRASZAM - możliwość oglądania również w weekendy, po wcześniejszym umówieniu terminu
Więcej ofert na naszej stronie www.amidom.pl
 
             
                                     
                                     
                                     
                                     
                                     
                                     
                                     
                                     
                                     
                                     
                                     
                                     
                                     
                                     
                                     
                                     
                                     
                                     
                                    