Opis nieruchomości
BLACK WEEK - PROMOCJA świąteczna - na jedną połowę bliźniakaNadbiel, powiat wołomiński, połowa bliźniaka na sprzedaż, stan deweloperski, 4 pokoje + garaż, działka 342,50 m2.
TYLKO U NAS - biuro sprzedaży dewelopera - bez prowizji i podatku P.C.C.
Promocja cenowa!
Budynki już w trakcie odbiorów
Prezentujemy osiedle nowych domów w zabudowie bliźniaczej położone za Wołominem w miejscowości Nadbiel, na granicy z miejscowością Stare Grabie.
Osiedle "Zielony Gaj" to miejsce idealne dla rodzin i osób pragnących żyć blisko natury, dla osób kochających kontakt z przyrodą i odpoczynek na świeżym powietrzu. Sąsiedztwo rozległych terenów leśnych jest idealne do spacerów, jazdy na rowerze.
Dom o funkcjonalnym układzie pomieszczeń z dużym ogrodem. W okolicy tylko niska zabudowa jednorodzinna.
OPIS SZCZEGÓŁOWY: Dom w zabudowie bliźniaczej o powierzchni całkowitej 108,44 m2 z garażem.
W poziomie parteru duży i ustawny salon połączony z widnym aneksem kuchennym, wiatrołap z miejscem na dużą szafę, mała łazienka z miejscem na kabinę prysznicową, kotłownia oraz garaż. W salonie miejsce na zainstalowanie kominka. Z salonu wyjście na duży taras wyłożony kostką. Na piętrze trzy sypialnie, duża łazienka z oknem, przedpokój.
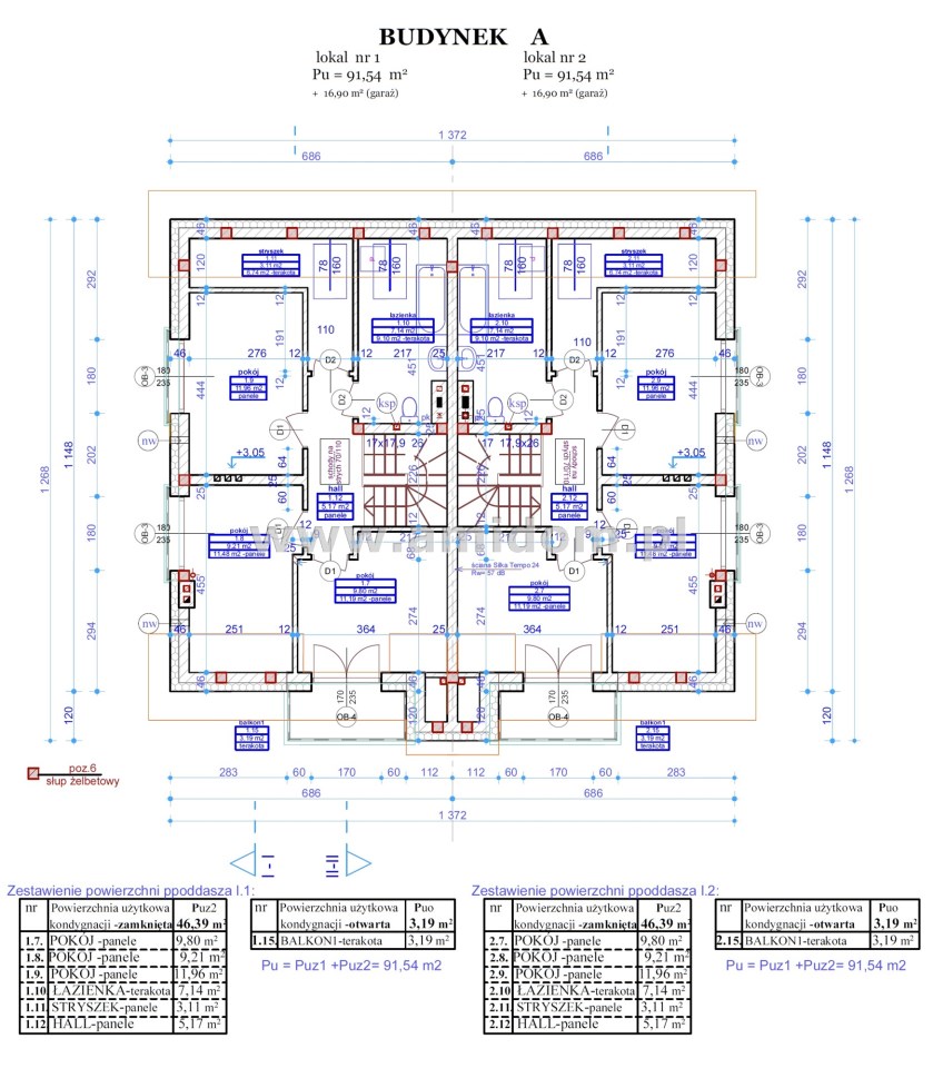
Zestawienie powierzchni:
PARTER - 62,05 m2:
- salon z aneksem kuchennym 33,22 m2;
- łazienka/wc 2,13 m2;
- hall 3,27 m2;
- wiatrołap 4,05 m2;
- kotłownia 2,48 m2.
- garaż 16,90 m2;
PIĘTRO - 46,39 m2, a po podłodze 55,64 m2:
- pokój 15,70 m2 - po podłodze 18,70 m2;
- pokój 9,21 m2 - po podłodze 11,48 m2;
- pokój 9,80 m2 - po podłodze 11,19 m2;
- łazienka z oknem 7,10 m2 - po podłodze 9,10 m2
- przedpokój 5,17 m2.
Standard: domy sprzedawane w stanie deweloperskim. Ściany z materiałów ceramicznych - cegła Porotherm, docieplenie budynku zew.- 20 cm, okna PCV 3-szybowe, 5-komorowe wewnątrz białe, zewnątrz złoty dąb, tynki wewnętrzne - gipsowe. Bez wykończonego sufitu na piętrze.
INSTALACJE: elektryczna, alarmowa, TV, wodna (studnia- własne ujęcie), CO, domofon, światłowodowa
Szambo - 8 m3.
W cenie piec gazowy dwufunkcyjny z zasobnikiem oraz grzejniki. Ogrzewanie podłogowe: parter bez garażu, łazienka na piętrze, w pokojach kaloryfery. Drzwi wejściowe antywłamaniowe ocieplone. Teren ogrodzony, wyrównany. Podjazd, miejsce postojowe i chodniki wyłożone kostką brukową.
Lokalizacja: do Wołomina 5 km, do Szosy Jadowskiej - 2,3 km, przystanki komunikacji miejskiej 800 m, szkoła podstawowa 2,3 km; stacja kolejowa Dobczyn - 3,2 km, skąd kolejką dojechać można bezpośrednia na Dworzec Wileński i II linię metra warszawskiego. Dobry dojazd samochodem trasą S8.
Budynki w trakcie odbiorów!
ZAPEWNIAMY KOMPLEKSOWĄ OBSŁUGĘ TRANSAKCJI, W TYM RÓWNIEŻ KREDYTOWĄ.
POLECAM I ZAPRASZAM na prezentację - możliwość oglądania również w weekendy, po wcześniejszym umówieniu terminu
Więcej ofert na naszej stronie www.amidom.pl
Nota prawna
Opis oferty zawarty na stronie internetowej sporządzany jest na podstawie oględzin nieruchomości oraz informacji uzyskanych od właściciela, może podlegać aktualizacji i nie stanowi oferty określonej w art. 66 i następnych K.C.Szczegóły



