Poświętne, Nadbiel

Dom na sprzedaż

5 pokoi 125,74 m2 4 366,15 zł/m2

549 000 zł

bez prowizji
Żaneta Tereszczenko

Właściciel – manager

Opis nieruchomości

PROMOCJA
Nadbiel, powiat wołomiński, na sprzedaż dom wolnostojący w budowie, stan surowy otwarty z dachem, duża działka 1420 m2.

Biuro sprzedaży - bez prowizji i podatku PCC.
Dom wolnostojący o funkcjonalnym układzie pomieszczeń z dużym ogrodem - stan jak na zdjęciach.
W okolicy tylko niska zabudowa jednorodzinna.
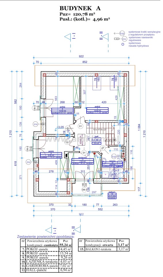
OPIS SZCZEGÓŁOWY:  Dom wolnostojący o powierzchni całkowitej 125,74 m2, powierzchnia użytkowa 120,78 m2 + kotłownia 4,96 m2.
W poziomie parteru salon połączony z widnym aneksem kuchennym, wiatrołap z miejscem na szafę, pokój, łazienka z oknem i kotłownia. Na piętrze trzy sypialnie, łazienka z oknem i garderoba z oknem, która może służyć np. za gabinet.
Zestawienie powierzchni:
PARTER: 65,54 m2:
- salon 36,38 m2;
- aneks kuchenny 10,36 m2;
- pokój 10,82 m2;
- łazienka 3,48 m2 w planach ale została powiększona o cześć kotłowni;
- wiatrołap 4,52 m2;
- kotłownia 4,96 m2.
PIĘTRO: 55,24 m2, a po podłodze 66,52 m2:
- pokój 14,45 m2 - po podłodze 17,77 m2;
- pokój 13,54 m2 - po podłodze 16,52 m2;
- pokój 9,26 m2 - po podłodze 11,78 m2;
- garderoba 7,02 m2 - po podłodze 7,56 m2;
- łazienka 4,03 m2 - po podłodze 5,95 m2
- przedpokój 6,94 m2.
Standard: domy sprzedawany w budowie w stanie surowym otwartym - stan jak na zajęciach.

Lokalizacja: do Wołomina 5 km,  do Szosy Jadowskiej - 2,3 km, przystanki komunikacji miejskiej 800 m, szkoła podstawowa 2,3 km; stacja kolejowa Dobczyn - 3,2 km, skąd kolejką dojechać można bezpośrednia na Dw. Wileński i II linię metra warszawskiego. Dobry dojazd samochodem trasą S8.

ZAPEWNIAMY KOMPLEKSOWĄ OBSŁUGĘ TRANSAKCJI, W TYM RÓWNIEŻ KREDYTOWĄ.

POLECAM I ZAPRASZAM na prezentację - możliwość oglądania również w weekendy, po wcześniejszym umówieniu terminu

Więcej ofert na naszej stronie www.amidom.pl

Nota prawna

Opis oferty zawarty na stronie internetowej sporządzany jest na podstawie oględzin nieruchomości oraz informacji uzyskanych od właściciela, może podlegać aktualizacji i nie stanowi oferty określonej w art. 66 i następnych K.C.

Szczegóły

Symbol oferty AMD-DS-5499
Powierzchnia 125,74 m²
Powierzchnia użytkowa 120,78 m²
Powierzchnia działki 1 420 m²
Ilość pokoi 5
Rodzaj domu wolnostojący
Technologia budowlana cegła, pustak ceramiczny poroterm
Garaż brak
Stan prawny Wlasnosc
Instalacje brak
Zagosp. działki niezagospodarowana
Ukształtowanie działki płaska
Kształt działki prostokąt
Pokrycie dachu blachodachówka
Pozwolenie na użytkowanie tak
Ogrodzenie działki brak
Rok budowy 2024
Gaz jest
Woda studnia
Dojazd droga gruntowa
Otoczenie działki zabudowane
Ogrzewanie C.O. GAZOWE
Prąd jest
Kanalizacja szambo

Pomieszczenia

Wysokość pomieszczeń 2,70 m
Powierzchnia pokoi 36,38/10,82/13,54/14,45/9,26 m2
Typ kuchni aneks kuchenny
Rodzaj kuchni jasna z oknem
Powierzchnia kuchni 10,36 m2
Ilość łazienek 2
PLN
PLN
PLN
PLN
PLN
PLN
PLN
%
PLN
PLN
PLN

PLN

Dane:

PLN
%

Wynik:

PLN
pierwsza rata
ostatnia rata

Napisz do nas

Proszę wypełnić to pole
Proszę wypełnić to pole
Proszę wypełnić to pole
Proszę wypełnić to pole
Trwa wysyłanie...

Ta strona wykorzystuje pliki cookies w celach statystycznych oraz w celu dostosowania naszych serwisów do indywidualnych potrzeb klientów. Zmiany ustawień dotyczących plików cookie można dokonać w dowolnej chwili modyfikując ustawienia przeglądarki. Korzystanie z tej strony bez zmian ustawień dotyczących cookies oznacza, że będą one zapisane w pamięci urządzenia.

rozumiem